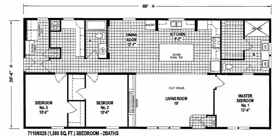
Spectra 7110
Facts and Features
Square Feet: 1,580
Bedrooms: 3
Bathrooms: 2
Style: Double
Dimensional Area:
Series: Spectra
Home Type: Manufactured
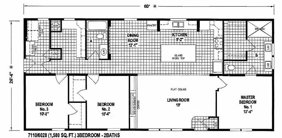
Square Feet: 1,580
Bedrooms: 3
Bathrooms: 2
Style: Double
Dimensional Area:
Series: Spectra
Home Type: Manufactured