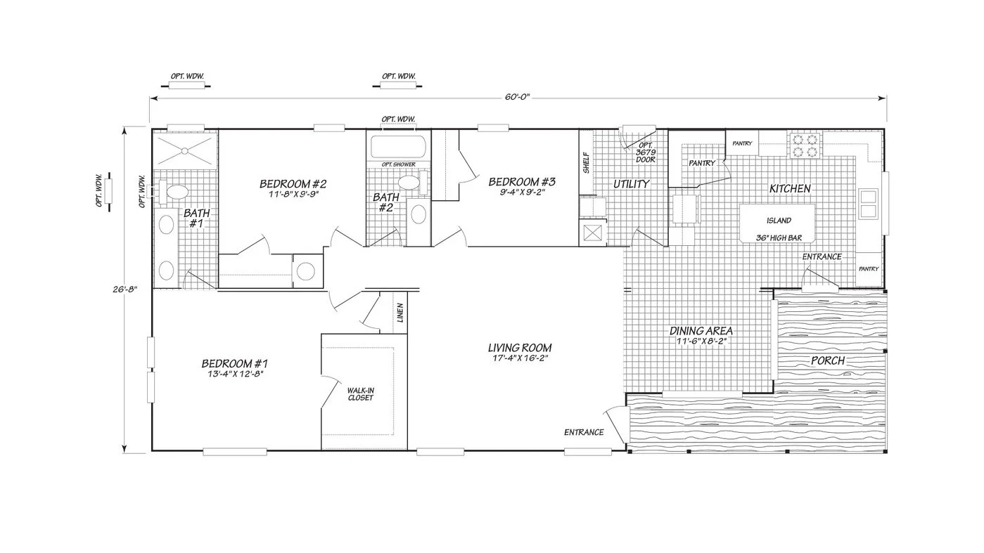
Evergreen 28603Z
Facts and Features
Square Feet: 1,425
Bedrooms: 3
Bathrooms: 2
Style: Double-wide
Dimensional Area:
Series: Evergreen
Home Type: Manufactured
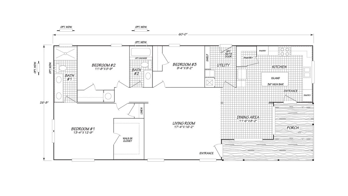
Square Feet: 1,425
Bedrooms: 3
Bathrooms: 2
Style: Double-wide
Dimensional Area:
Series: Evergreen
Home Type: Manufactured