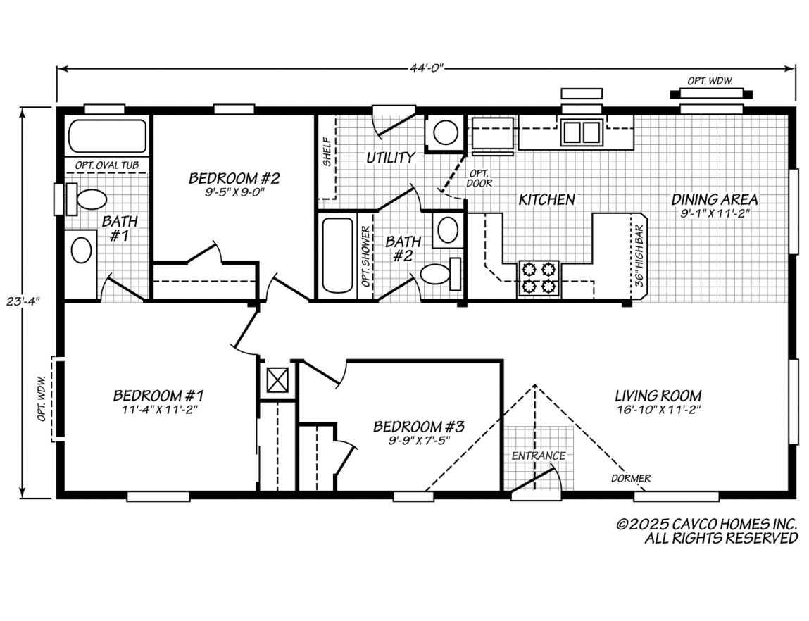
Evergreen 24443E
Facts and Features
Square Feet: 1,026
Bedrooms: 3
Bathrooms: 2
Style: Double-wide
Dimensional Area:
Series: Evergreen
Home Type: Manufactured
Square Feet: 1,026
Bedrooms: 3
Bathrooms: 2
Style: Double-wide
Dimensional Area:
Series: Evergreen
Home Type: Manufactured